芜湖长江两岸两大楼盘最新规划公示!刚需又有机会了?
今日,长江两岸各有一个
新项目最新规划公示
芜湖的买房人又多了两个新选择!
华强悦山府(1806号宗地)
第一个公示项目位于江南的三山区
华强悦山府东面1806号宗地
今年8月底被华强地产夺得
项目北至三山区法院、南至高岗埠路
西至大福路、东至龙湖路

根据规划,华强悦山府(1806号宗地)
项目总用地面积约88560平米
总计容建筑面积约194832平米
总户数为1740户
项目由9栋高层、12栋多层组成
且项目中规划有养老用房
养老活动和儿童活动设施场地
且规划有部分商业配套
华强悦山府(1806号宗地)位于
三山区法院南侧,属于政务中心板块
板块公园、医疗、商业等配套完善
目前已经入驻华强、融创、皖新等房企
生态环境优美,居住便捷
根据1806号宗地大致区位图
皖医弋矶山医院三山医养结合中心
据地块仅一路之隔,项目分综合性医院和
健康养老两大模块,按三甲医院标准建设
已于去年12月开工,预计3年内投运

▲西湖公园美景
项目紧邻西湖湿地公园
是三山市民们常去的休闲健身场所
日前西湖湿地公园亮化
美化工程已经完工
是一处风景优美、环境宜人之地
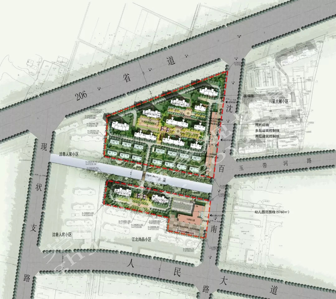
金鹏珑玺台
公示的第二个项目是位于
江北的金鹏珑玺台
沈百南路西侧、S206省道南侧
今年7月初被金鹏地产以1.878亿拿下
后定名为“金鹏珑玺台”
仅四个多月,项目规划就已经公示

根据规划显示,金鹏珑玺台项目
总用地面积53970.97平方米
总计容建筑面积约97016.76㎡
总户数为827户

项目由6栋高层、6栋多层
以及14栋别墅组成
且项目中规划有一个12班制的幼儿园
以及社区卫生服务和养老用房
近日芜湖好几个新项目规划陆续被公示
万科江东府、伟星雍璟台
祥生府、芜湖伟星院子(1810号地块)等
可见年末的芜湖楼市或将
有一批纯新盘即将入市
买房人的选择将会越来越多
年末的楼市将如何发展?我们共同期待!




