高层+洋房+别墅!芜湖镜湖某纯新盘规划出炉!预计下月首开!
近日,芜湖市城乡规划局官网公示了镜湖区万科江东府的规划方案批前公示。

一、公示内容:
项目备案号:镜发改备{2018}41号
项目名称:江东府
建设单位:芜湖万佳房地产开发有限公司
项目位置:广福路以北
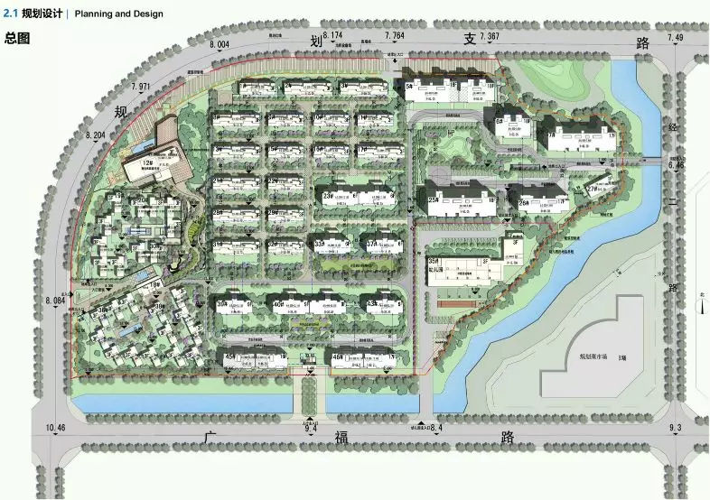
项目总用地面积84372平方米,总计容建筑面积118120.04㎡,总户数923户。具体内容详见附图,现根据《中华人民共和国城乡规划法》、住建部《关于城乡规划公开公示的规定》等法律法规予以公示。
二、公示地点:
1、项目现场:广福路以北
2、《芜湖日报》
3、市规划馆
4、市城乡规划局网站:ghj.wuhu.gov.cn
三、公示时间
自2018年11月13日——2018年11月21日
如有意见,公示期满前请按下列联系方式来电或提供书面意见。涉及重大利害关系的,利害关系人如需申请听证,请在公示结束后5个工作日内提出书面申请。
四、联系方式:
芜湖市城乡规划局用地管理科 许工 0553-3821376
芜湖市城乡规划局镜湖分局 于工 0553-3857305
芜湖市城乡规划局
2018年11月12日

根据规划显示,万科江东府共计规划了38栋楼,其中包括高层,洋房、别墅和合院,同时项目还规划了一所幼儿园和一栋商业用房。
沿长江大桥鸟瞰效果图

其中1-3#、8-11#、13#、15-17#、21#、22#、28#、29#、31#、32#楼为3层高的别墅;5#、6#楼为18层,7#、46#楼为17层,45#楼为16层;23#、33#、37#楼为6层,39#、40#、43#楼为9层;19#、20#、30#、36#、38#楼为3层的合院。
据了解万科江东府预计12月初首开,项目预计11月售楼部及示范区开放。建筑面积约134-143㎡瞰江洋房、196㎡星空联排、235㎡观澜合院,全城预约中。
周边配套
1、商业配套
江东府位于芜湖市镜湖区,区域市场繁荣,业态稳定。周边不仅有欧尚超市、吉和大市场、巨龙大市场等商超,还有方特欢乐世界、芜湖科技馆等文教、娱乐类公共场所。购物、娱乐等日常生活所需统统都能满足。

2、交通概况
项目位于镜湖区东方医院地块,华强城赛纳丽城附近,紧临长江北路,交通便利,车流通畅。相邻芜湖长江大桥,城际穿梭,巧捷先登。同时周边有多条公交线路经过,目前可以乘坐3、8、19、47、103(夜)、110(夜)路车到“景江东方”或“杨家门”站下。

3、教育资源
除了项目自身配建一所十二班幼儿园外,另周边还有第二十九中学、王家巷小学、华强城幼儿园、小学、中学三位一体教育,师资雄厚,从幼儿园到初中享受无忧教育,给孩子一个良好的学习氛围。




